Пользуясь нашим сайтом, вы соглашаетесь
с тем, что мы используем cookies.

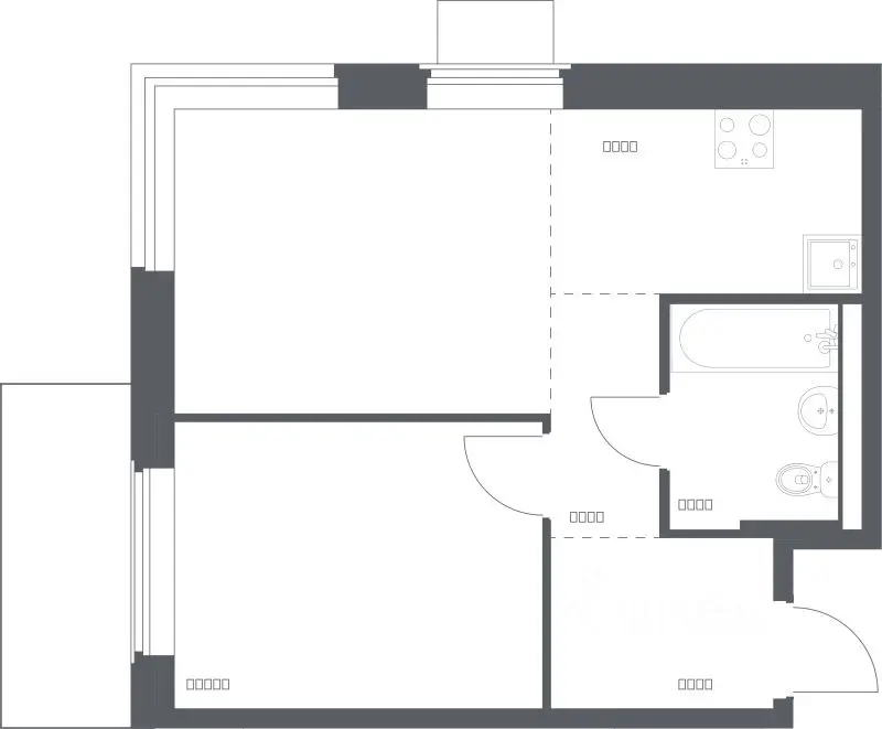
1-комнатная квартира , 39.3 м²

Планировка

Характеристики квартиры

Количество комнат 1
Общая площадь 39.3 м²
Этаж / Этажность 12 из 14
Корпус Дом 10
Срок сдачи Сдача в 1 квартале 2026

Описание

Продаётся 1-комнатная квартира в строящемся доме (Дом 10), срок сдачи: I-кв. 2026, общей площадью 39.34 кв.м., на 12 этаже. Жилой комплекс "Квартал Западный" в Новомосковском округе. Это жизнь в Москве без столичной суеты, в окружении лесопарка и реки. На территории предусмотрены школа, два детских сада, станция скорой помощи. Во дворах - игровые и спортивные площадки, пространства для отдыха и встреч с друзьями. Для активных игр обустроим плейхаб. Закрытые дворы-парки, уютные дома переменной этажности, квартиры с готовой отделкой - въезжайте и получайте удовольствие от каждого дня в "Квартале Западном".
10 745 845 ₽
273 153 ₽ за м²