Пользуясь нашим сайтом, вы соглашаетесь
с тем, что мы используем cookies.

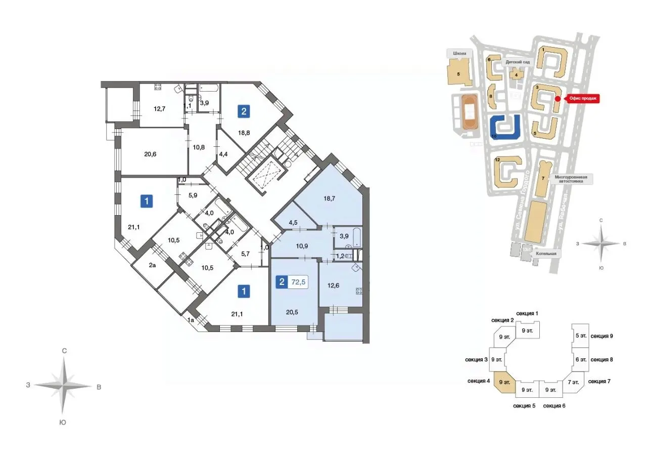
2-комнатная квартира , 72.8 м²

Планировка

Характеристики квартиры

Количество комнат 2
Общая площадь 72.8 м²
Этаж / Этажность 8 из 9
Корпус Семёна Гордого, 10
Срок сдачи Уточняйте

Описание

Продаётся 2-комнатная квартира в сданном доме (Семёна Гордого, 10), срок сдачи: IV-кв. 2018, общей площадью 72.8 кв.м., на 8 этаже. Расположение, транспортная доступность Жилой комплекс "Ново-Никольское" - это жилой район класса комфорт, в состав которого входят несколько десятков жилых зданий разнообразных форматов (коттеджи, дуплексы, таунхаусы, малоэтажные дома высотой до 3 этажей и многоэтажные корпуса высотой до 9 этажей). Район располагается на просторной территории площадью 115 га рядом с деревней Ивановское Первомайского поселения Троицкого административного округа Москвы, в 21 км от МКАД по Киевскому шоссе. Удобная транспортная развязка, ведущая к шоссе, находится в непосредственной близости от "Ново-Никольского". Трасса пролегает мимо аэропорта "Внуково". Ближайшая железнодорожная станция, "Апрелевка", расположена в десяти километрах от комплекса. Добраться от комплекса до ближайших станций метро можно на маршрутном такси 304 (до станций метро "Румянцево", "Тропарёво" и "Юго-Западная"), на автобусе 526 или маршрутном такси 522 (до станции метро "Тёплый Стан"). Инфраструктура Внутренняя инфраструктура ЖК "Ново-Никольское" включает в себя три детских сада на 150, 100 и 40 мест, две общеобразовательные школы на 825 и 285 мест, школу искусств, торгово-развлекательный центр, минимаркет, различные сервисные службы и другие объекты. Детский сад на 150 мест и школа на 825 мест уже построены и в ближайшее время будут введены в эксплуатацию. Для автовладельцев в комплексе предусмотрены парковочные места, как на придомовой территории, так и в крытом семиуровневом паркинге. Экологическая ситуация здесь благоприятная. Со стороны Киевского шоссе "Ново-Никольское" окружают лесные массивы. Река Десна, протекающая вдоль территории жилого комплекса, украшена живописным каскадом прудов. В километре от комплекса находится усадьба Старо-Никольское, главный дом которой был построен в 19 веке, и отреставрирован в 2015 году. Надежность застройщика Девелопером жилого комплекса "Ново-Никольский" выступает производственно-строительное управление "АГРОСТРОЙ", зарегистрированное в 2005 году. Организация работает как в России, так и в странах ближнего зарубежья. "АГРОСТРОЙ" возводит не только жилую недвижимость, но и социально-значимые объекты инфраструктуры: медицинские центры, торгово-развлекательные комплексы, административные здания. Также в портфеле организации есть спортивные сооружения крытого и открытого типов. При возведении жилых комплексов девелопер ориентируется на строительство целых кварталов с развитой инфраструктурой. Помимо строительных работ, "АГРОСТРОЙ" производит отделочные, комплектующие, строительные материалы, осуществляет земляные работы, занимается прокладкой наружных сетей, разводкой коммуникаций внутри зданий, а также сносом ветхого жилья. Поскольку объекты организация сдаёт "под ключ", она также выполняет отделочные работы и ландшафтное оформление придомовых территорий. Архитектура В комплексе есть все необходимые центра