Пользуясь нашим сайтом, вы соглашаетесь
с тем, что мы используем cookies.

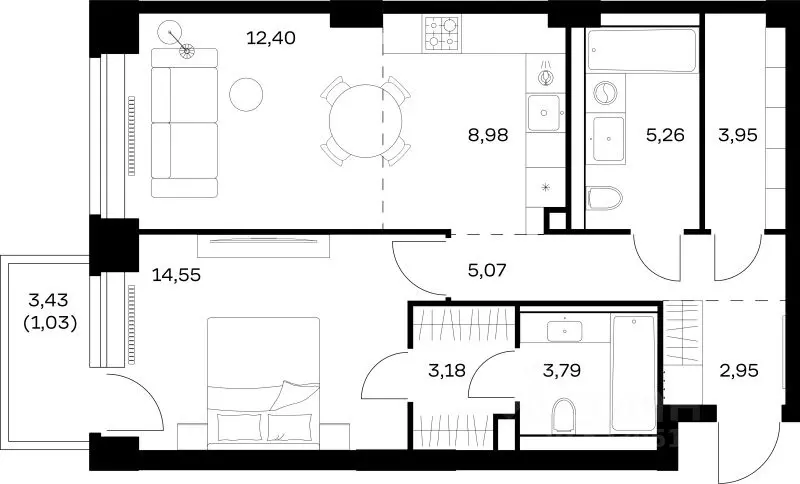
1-комнатная квартира , 61.2 м²

Планировка

Характеристики квартиры

Количество комнат 1
Общая площадь 61.2 м²
Этаж / Этажность 9 из 40
Корпус Корпус 1
Срок сдачи Сдача в 4 квартале 2027

Описание

Продаётся 1-комнатная квартира в строящемся доме (Корпус 1), срок сдачи: IV-кв. 2027, общей площадью 61.16 кв.м., на 9 этаже. NOVA - Первый архитектурный проект в премиальной линейке Samolet Select - совершенной коллекции комфорта, статуса и преимуществ. Каждый день в NOVA - это коллекция впечатлений, которые останутся с вами День начнется с захватывающего панорамного вида на город, природу и набережную. Близость к бизнес-центрам позволит эффективно вести дела. Парки и набережные, продуманная благоустроенная территория проекта - отдохнуть в тишине, провести время с близкими или заняться спортом. Кафе, рестораны и культурные центры - увидеть, попробовать и узнать новое или снова выбрать любимое. NOVA - уникальная коллекция планировочных решений и форматов на любой вкус. Панорамное остекление, от студий до 6 комнат на выбор, двухуровневые пентхаусы со вторым светом, квартиры с собственным патио. Благодаря расположению и полноценной инфраструктуре первых этажей в NOVA все близко: торговые и бизнес центры, кафе, рестораны, бытовые услуги, соседский центр, фитнес-клуб, гастропространство, парки и природа, музеи, образование, театры и многое другое. В NOVA предусмотрены большие открытые террасы и балконы со стеклянным ограждением, которые не закрывают обзор. Встречать летние закаты или рассветы, новогодний салют и первый снег с видом на город. Приватные дворы без машин. Благоустроенная территория 5 гектаров, продуманная в каждой детали. Разнообразие растений и озеленения. Детские площадки и зоны отдыха с шезлонгами. Места для работы, прогулок и спорта. Знаковые, культурные, образовательные и любимые места в пешей доступности. 500 метров до "Поклонной горы", 3 километра до "Москва-Сити". До ведущих университетов МГУ и МГИМО можно добраться за 15 минут. Рядом Кутузовский проспект - ключевая транспортная магистраль, которая позволяет моментально оказаться в центре города, а также Москва - река, чтобы отправиться в плавание. Экологически чистый район Раменки на берегу реки. В Раменках много зеленых зон, они занимают практически четверть территории района: Ботанический сад МГУ, Парк Победы, Воробьевы горы, парк "Событие", самый крупный в Москве заказник - "Долина реки Сетунь", заказник поменьше - "Долина реки Раменки".
47 852 501 ₽
782 415 ₽ за м²