Пользуясь нашим сайтом, вы соглашаетесь
с тем, что мы используем cookies.

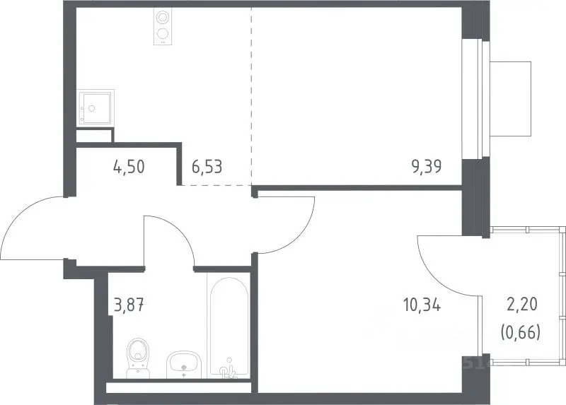
1-комнатная квартира , 35.3 м²

Планировка

Характеристики квартиры

Количество комнат 1
Общая площадь 35.3 м²
Этаж / Этажность 5 из 12
Корпус Дом 3
Срок сдачи Сдача в 1 квартале 2026

Описание

Продаётся 1-комнатная квартира в строящемся доме (Дом 3), срок сдачи: I-кв. 2026, общей площадью 35.29 кв.м., на 5 этаже. Жилой комплекс "Подольские кварталы" - это комфортные дома высотой до 12 этажей в Новой Москве. Он спроектирован с учетом потребностей современных жителей столицы. Мы построим дворы-парки без машин, паркинги, спортхаб и плейхаб, собственные детский сад, школу, учебно-воспитательный комплекс на территории. Проект будет расположен в экологически чистом районе на берегу реки Десны в окружении лесопарков. Если захотите отправиться в центр столицы - дорога до станции МЦД-2 "Силикатная" займет 8 минут на машине. Вы получите квартиру с готовой отделкой. Ламинат и обои под покраску в нейтральных оттенках станут основой для любого интерьера, классического или современного. Не беспокойтесь о ремонте - переезжайте сразу после выдачи ключей.