Пользуясь нашим сайтом, вы соглашаетесь
с тем, что мы используем cookies.

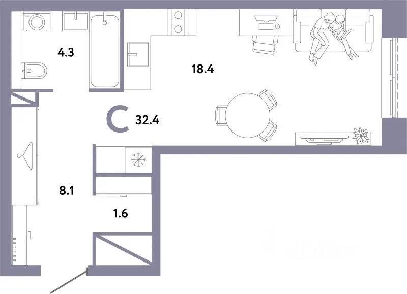
Студия , 32.4 м²

Планировка

Характеристики квартиры

Количество комнат Студия
Общая площадь 32.4 м²
Этаж / Этажность 22 из 38
Корпус Дом 1 (участок 3/4а)
Срок сдачи Сдача в 1 квартале 2028

Описание

Продаётся студия в строящемся доме (Дом 1 (участок 3/4а)), срок сдачи: I-кв. 2028, общей площадью 32.4 кв.м., на 22 этаже. Новый жилой дом от застройщика "Страна Девелопмент" расположен по адресу Россия, Москва, Иловайская улица
16 190 000 ₽
499 691 ₽ за м²