Пользуясь нашим сайтом, вы соглашаетесь
с тем, что мы используем cookies.

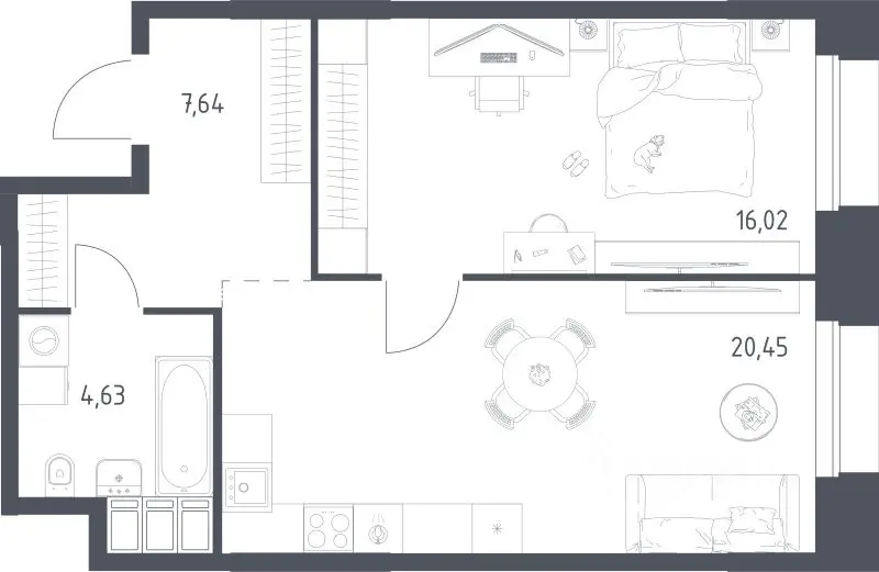
1-комнатная квартира , 48.7 м²

Планировка

Характеристики квартиры

Количество комнат 1
Общая площадь 48.7 м²
Этаж / Этажность 18 из 23
Корпус Корпус 2.2
Срок сдачи Сдача в 3 квартале 2026

Описание

Продаются 1-комнатные апартаменты в строящемся доме (Корпус 2.2), срок сдачи: III-кв. 2026, общей площадью 48.74 кв.м., на 18 этаже. "Тропарево Парк" — апартаменты бизнес-класса в Новой Москве, на Ленинском проспекте. Территория комплекса граничит с Тропаревским лесопарком, одной из главных природных достопримечательностей Запада Москвы. Гуляйте среди елей, сосен и берез. Кормите белок, играйте в волейбол и купайтесь в чистом пруду. В 10 минутах на автомобиле — ландшафтный заказник "Теплый стан", где можно расслабиться на пляже и арендовать лодку для водной прогулки. До станции метро "Румянцево" — 10 минут пешком. Выезд на МКАД займет всего минуту. Поездка на автомобиле до центра Москвы — 20 минут, а до аэропорта "Внуково" — 17 минут. В "Тропарево Парке" откроется частный детский сад. На первых этажах жилых корпусов разместятся кафе, салоны красоты и магазины. До бизнес-парка "Румянцево" — 15 минут пешком. Здесь вас ждут кафе и рестораны, торговая галерея, фитнес-клуб "Зарядка". В 10 минутах ходьбы — торговый центр "Румянцево Сити". Также поблизости расположены торговые центры "Саларис" и Family Room, гипермаркеты "Глобус" и "Леруа Мерлен", спортивный клуб "Будь здоров!". Проект разработала дизайн-студия GAFA Architects. Комплекс состоит из 7 корпусов высотой от 16 до 23 этажей. Каждый корпус носит уникальное название, связанное с ботаникой — это отсылка к разнообразным растениям Тропаревского лесопарка. Фасады облицованы кирпичом в природной бежево-коричневой гамме. Угловые окна увеличиваются по ширине в зависимости от высоты этажа — получается эффект воздушности при сохранении общей строгости и простоты. Приватные дворы-парки предназначены для спокойного отдыха и общения. Во дворах нет машин и посторонних. Для доступа резиденты пользуются индивидуальными смарт-картами. Оставить машину можно в подземном или открытом паркинге. Территория "Тропарево Парка" — гармоничное продолжение природного ландшафта Тропаревского лесопарка. Здесь появится вечнозеленый сад с живыми изгородями, пространства для тихого отдыха под навесами из растений. Для тренировок создадут спортивное пространство, а для детей всех возрастов — плейхаб и игровые площадки в экостиле. Участок особо охраняемой природной территории, который граничит с комплексом, будет благоустроен. Тема природы отражена и в интерьере мест общего пользования. Для отделки дизайнеры подобрали естественные оттенки и фактуры, а лобби украшают живые растения. В лаунж-зоне с мягкой мебелью приятно расслабиться в ожидании такси. Предусмотрены колясочные на первых этажах. Входы в подъезды расположены на уровне земли. В комплексе — планировочные решения от студий до трехкомнатных апартаментов евроформата. Есть варианты с гардеробными, а также с отдельным входом с улицы и собственным палисадником. Из части апартаментов открывается вид на лесопарк. Мы предлагаем апартаменты с чистовой отделкой: дополнительно можно заказать мебель и технику. Также есть возможность выбрать апартаменты без отделки, чт