Пользуясь нашим сайтом, вы соглашаетесь
с тем, что мы используем cookies.

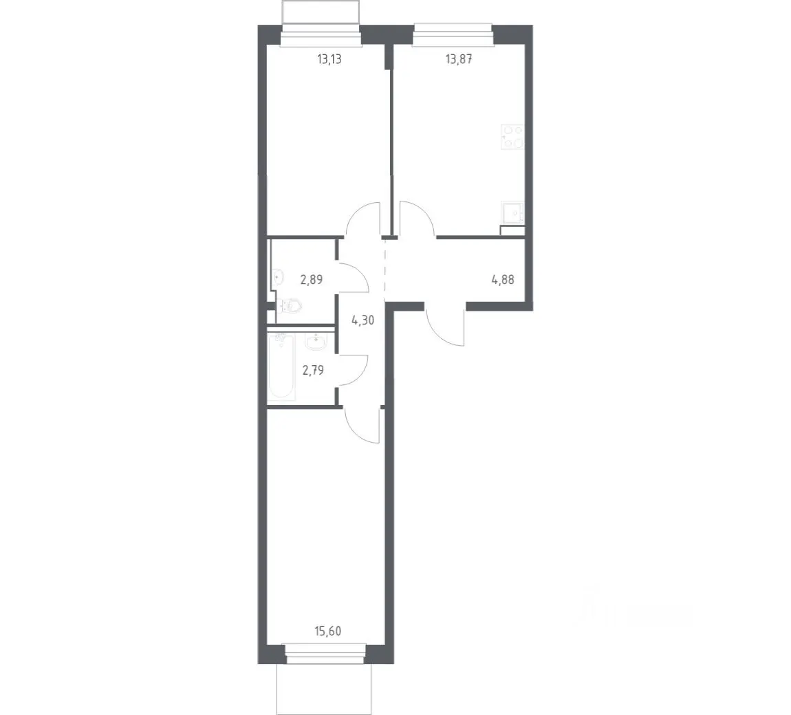
2-комнатная квартира , 57.5 м²

Планировка

Характеристики квартиры

Количество комнат 2
Общая площадь 57.5 м²
Жилая площадь 28.7 м²
Этаж / Этажность 3 из 5
Корпус Корпус 29
Срок сдачи Сдача во 2 квартале 2026

Описание

Строим кварталы для жизни с заботой о будущем. Предлагается 2-комнатная квартира комфорт-класса площадью 57,46 кв.м в корпусе 29 на 3-м этаже, в жилом комплексе "Новое Внуково". Застройщик сдает квартиры с отделкой в нескольких вариантах: предчистовая, готовая, улучшенная или вариант без нее. Последний подойдет тем, кто хочет создать свой уникальный интерьер и ничем себя не ограничивать. А если не хочется тратить время на ремонт, можно выбрать опцию — с отделкой. Перед тем как отдать ключи, застройщик установит натяжные потолки, поклеит обои под покраску, положит ламинат светлых тонов, а в санузлах — керамическую плитку и керамогранит. Приобрести квартиру возможно по специальным акциям от застройщика, с текущими условиями акций можно ознакомиться в блоке "Акций". Цена динамическая и может отличаться, уточняйте актуальность у застройщика. "Новое Внуково" — это жилой комплекс в Новой Москве, у подножия берега реки Незнайка. Поблизости — живописные места для прогулок: народный парк "Ручеек", усадьба Старо-Никольское, Валуевский и Ульяновский лесопарки. Часть домов сдана и внутри района уже открыт детсад с бассейном, а в ближайшее время откроются еще 3 детсада, 2 школы и поликлиника. На территории проекта будет построен первый в России Центр Российской Федерации Баскетбола, где будут площадки с трибунами, тренажерный зал, кафе и конференц-зал. Дворы-парки закрыты от машин и посторонних. На территории — прогулочный маршрут вдоль реки Незнайка и набережная с шезлонгами и качелями для отдыха. Также здесь появится плейхаб "Незнайка на Луне", площадь для мероприятий с сухим фонтаном, летним кинотеатром и кафе. В жилом комплексе — монолитные дома высотой от 6 до 14 этажей. Фасады облицованы кирпичом природных оттенков.