Пользуясь нашим сайтом, вы соглашаетесь
с тем, что мы используем cookies.

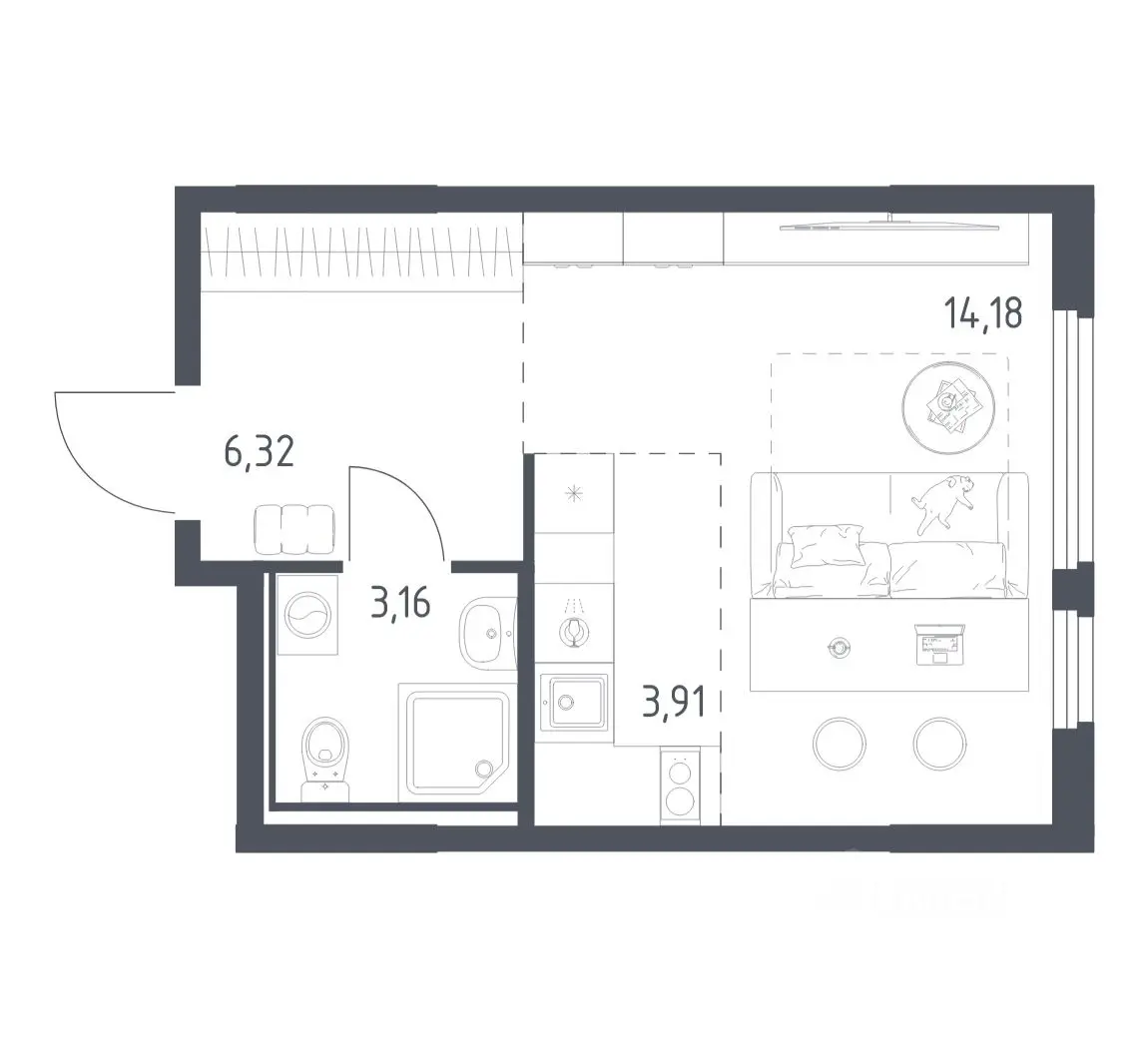
Студия , 27.6 м²

Планировка

Характеристики квартиры

Количество комнат Студия
Общая площадь 27.6 м²
Жилая площадь 14.2 м²
Этаж / Этажность 5 из 14
Корпус Корпус 20
Срок сдачи Сдача в 3 квартале 2026

Описание

Строим кварталы для жизни с заботой о будущем. Предлагается студия комфорт-класса площадью 27,57 кв.м в корпусе 20 на 5-м этаже, в жилом комплексе "Остафьево". Застройщик сдает квартиры с отделкой в нескольких вариантах: предчистовая, готовая, улучшенная или вариант без нее. Последний подойдет тем, кто хочет создать свой уникальный интерьер и ничем себя не ограничивать. А если не хочется тратить время на ремонт, можно выбрать опцию — с отделкой. Перед тем как отдать ключи, застройщик установит натяжные потолки, поклеит обои под покраску, положит ламинат светлых тонов, а в санузлах — керамическую плитку и керамогранит. Приобрести квартиру возможно по специальным акциям от застройщика, с текущими условиями акций можно ознакомиться в блоке "Акций". Цена динамическая и может отличаться, уточняйте актуальность у застройщика. "Остафьево" — масштабный жилой комплекс в Новой Москве, рядом с одноименным музеем-усадьбой и городским парком "Барыши". До станций МЦД "Щербинка" и "Остафьево" можно добраться на автомобиле за 57 минут. Часть домов уже сдана, на территории открыты две школы и три детских сада, а в будущем будет построена поликлиника, ТЦ, еще одна школа и три детских сада. Все необходимое рядом: на первых этажах домов работают магазины, аптеки и кафе. Дворы — приватные мини-парки без машин и посторонних. Кроме игровых площадок, для детей обустроили тематический плейхаб "Маяк". В будущем появятся плейхаб "Алиса в стране чудес", арт-объект "Тропа зеркал", а также большой ландшафтный парк. В квартале — монолитные дома комфортной высоты, от 10 этажей. Светлые фасады украшают кирпичные вставки в теплых природных оттенках.