Пользуясь нашим сайтом, вы соглашаетесь
с тем, что мы используем cookies.

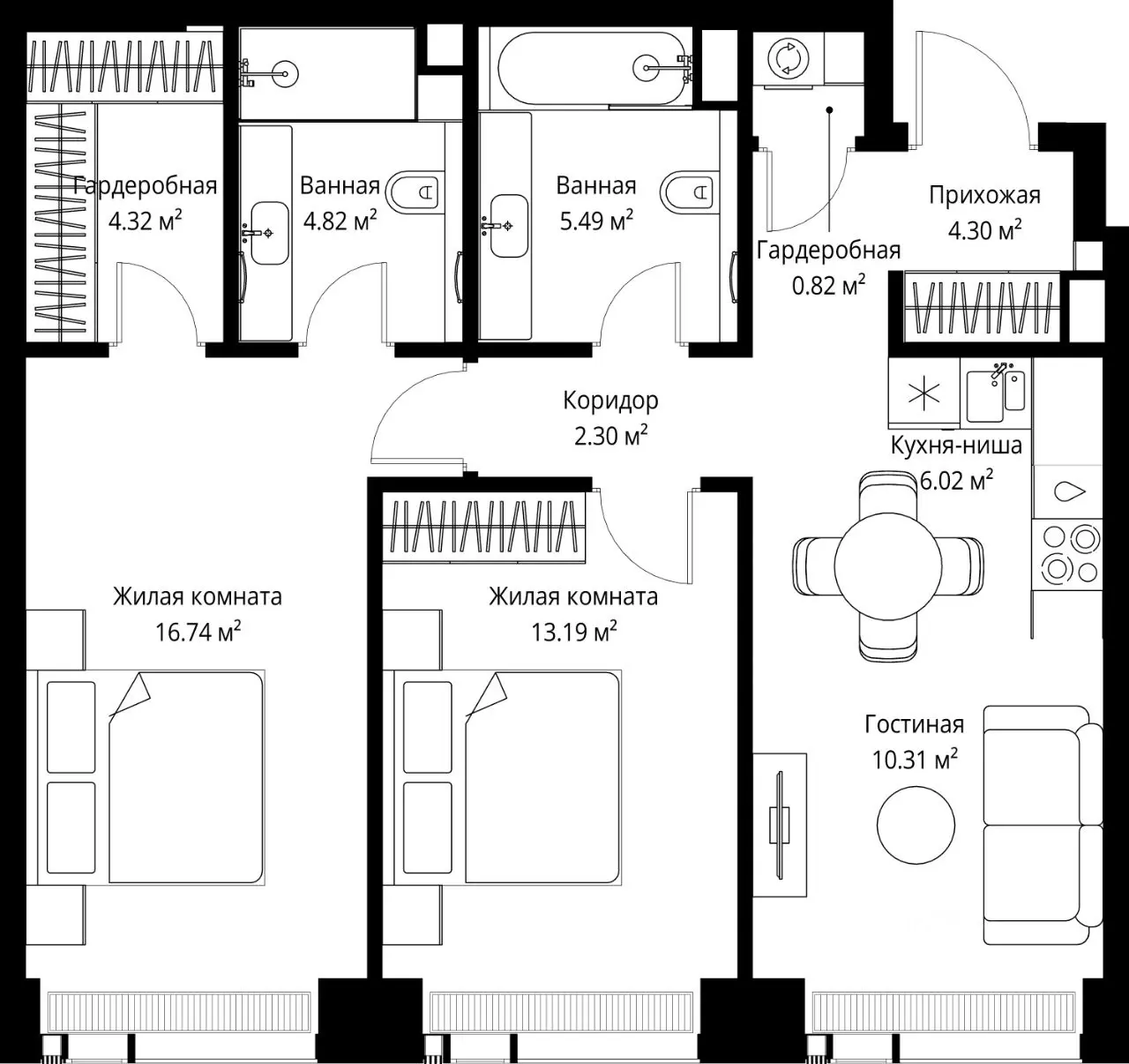
2-комнатная квартира , 68.3 м²

Планировка

Характеристики квартиры

Количество комнат 2
Общая площадь 68.3 м²
Жилая площадь 29.9 м²
Этаж / Этажность 48 из 70
Корпус ВЕЕР.2 (Корпус 1)
Срок сдачи Сдача в 4 квартале 2029

Описание

Старт продаж новой очереди! Продаётся 2-комнатная квартира общей площадью 68.31 м² без отделки в ЖК Веер на 48-м этаже 70 этажного дома. Веер.2 — вторая очередь футуристичного квартала бизнес-класса Веер. Это новая экосистема в престижном Западном округе Москвы, поражающая масштабностью внутренней инфраструктуры. ЖК находится всего в 5 минутах от Кутузовского проспекта и в 15 минутах от Сколково. Ансамбль из четырех стеклянных башен с доминантой в 237 метров разработан по принципу современного урбанизма и выражен в лаконичных объемах — параллелепипедах со сглаженными углами, которые придают зданиям утонченный вид. Расположение и транспортная доступность: • Образовательный комплекс в составе топовой школы, состоящий из двух зданий: основное на 1500 школьных и 450 дошкольных мест, отдельное здание детского сада на 300 мест. • Парк "Долина реки Сетунь" площадью более 700 гектаров • Рядом МГУ, МГИМО, РАНХиГС и Академия ФСБ • 15 минут по Кутузовскому проспекту до ужина в центре с видом на Москву-реку • 18 минут пешком до м. "Давыдково" • Открытие новых станций метро в шаговой доступности в будущем Инфраструктура: Двор в Веер.2 — это ассиметричные холмы, каменные "лабиринты", зеленые ковры и хвойные островки с единой живой экосистемой. Здесь есть все: • Павильон умиротворения Место отдыха под навесом в спокойной части двора, окруженное деревьями. • Активная тропа Тактильная дорога из камней разного диаметра для расслабляющих прогулок. • Бизнес-гарден Оборудованное пространство для работы на свежем воздухе со столом и встроенными розетками. • Детская площадка Двухуровневая площадка "Ботаника" с песочницей, переговорной трубой и горкой "Дружба". Компания MR предлагает своим клиентам специальные условия приобретения квартир в рамках программ ипотечного кредитования от банков-партнеров.
31 151 068 ₽
456 025 ₽ за м²