Пользуясь нашим сайтом, вы соглашаетесь
с тем, что мы используем cookies.

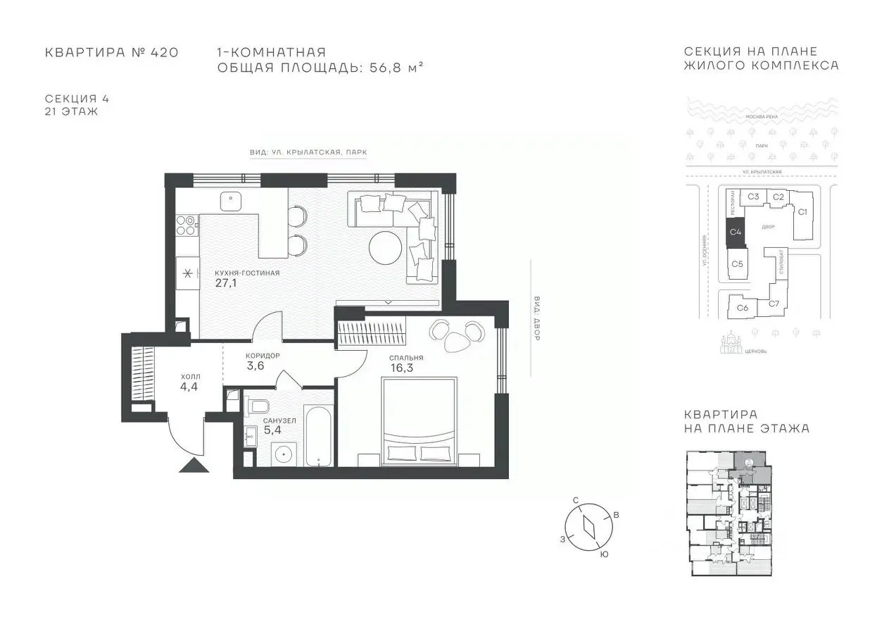
1-комнатная квартира , 56.8 м²

Планировка

Характеристики квартиры

Количество комнат 1
Общая площадь 56.8 м²
Этаж / Этажность 21 из 43
Корпус Секции 4
Срок сдачи Сдача во 2 квартале 2027

Описание

Продается 1-к квартира площадью 56.8 кв.м. на 21-м этаже в ЖК "Клубный квартал Крылатская 33". Прямая продажа от застройщика! Крылатская 33 - проект премиум-класса на западе Москвы от специализированного застройщика "Сияние". Комплекс расположен всего в 15 минутах от Садового кольца и Москва-Сити, а рядом есть большое количество зелёных зон: Крылатский и Москворецкий парки, Серебряный бор, Крылатские холмы - это создает идеальный баланс между приватностью и динамичным ритмом мегаполиса. Квартал сочетает высотные башни до 150 метров и камерные малоэтажные корпуса. Витражное остекление "в пол" наполняет квартиры светом и открывает захватывающие панорамы на Москву-реку и знаковые виды столицы. Здесь каждый найдет то, что подходит именно ему - от уютных студий до роскошных пентхаусов и квартир с собственными террасами. Внутренняя среда жилого комплекса продумана до мельчайших деталей, чтобы резиденты могли продуктивно работать и качественно отдыхать, не покидая территорию: • фитнес-центр, включающий в себя СПА-зону; • коворкинг с кофейней и быстрым интернетом; • общественная гостиная для организации клубных мероприятий; • ресторан с панорамным остеклением; • благоустроенный сад с зоной отдыха; • инновационная игровая площадка для детей всех возрастов; • консьерж-сервис 24/7, современные системы видеонаблюдения и пожаротушения; • двухуровневый паркинг и многое другое. Район Крылатское - точка притяжения для тех, кто выбирает активный образ жизни. В непосредственной близости расположены Гребной канал, Олимпийский велотрек, горнолыжный комплекс "Лата Трэк", гольф-клуб и парковые зоны. В проекте действуют привлекательные условия покупки: - выгода до 10% при 100% оплате (действует на ограниченный пул квартир, подробности уточняйте в отделе продаж). - рассрочка от застройщика 0% с первоначальным взносом от 20% на срок до 30.06.2027.
40 612 000 ₽
715 000 ₽ за м²