Пользуясь нашим сайтом, вы соглашаетесь
с тем, что мы используем cookies.

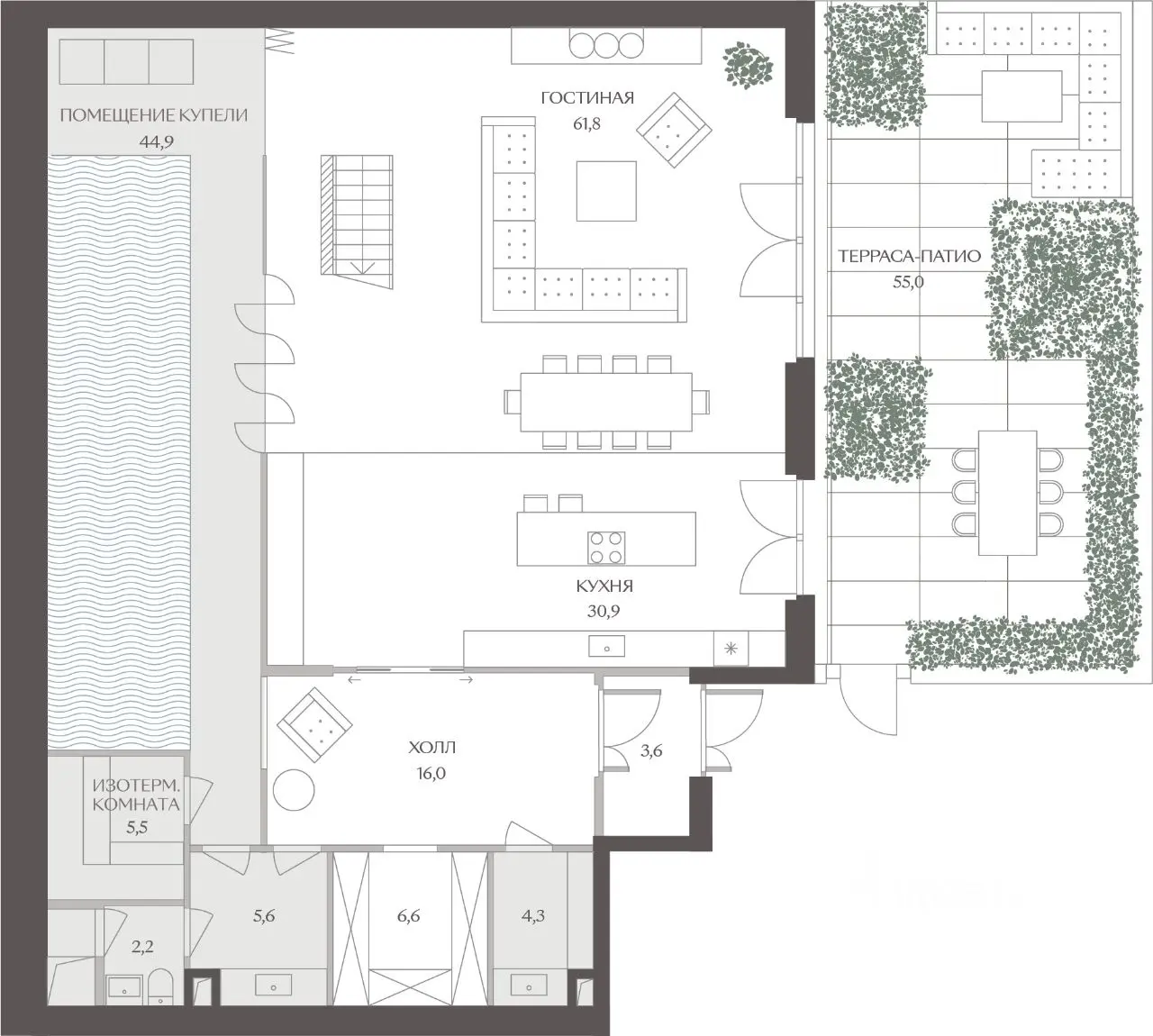
3-комнатная квартира , 300.1 м²

Планировка

Характеристики квартиры

Количество комнат 3
Общая площадь 300.1 м²
Этаж / Этажность 1 из 8
Корпус Тессинский, 1
Срок сдачи Сдан в 3 квартале 2023

Описание

Продаётся 3-комнатная квартира в сданном доме (Тессинский, 1), срок сдачи: III-кв. 2023, общей площадью 300.1 кв.м., на 1 этаже. Мы строим дом в историческом центре, где старинные соборы соседствуют с крупнейшим арт-кварталом. В месте, где каждый гордо продолжает путь предыдущих поколений, — и обретает что-то очень важное, стоя на этом мосту между прошлым и будущим. Частью фасада "Тессинского, 1" стали стены двух исторических здании. Их не стали сносить, а бережно очистили и восстановили кирпичную кладку XIX века. Дом в Тессинском поддерживает диалог не только с окружающеи историческои застроикои, но и с современными домами по соседству. "Тессинскии, 1" помогает чувствовать причастность к былому величию, без ущерба для современного стиля жизни. Владеть квартирой в таком доме — значит, владеть частью Москвы. Пруд — композиционный центр лаконичного благоустройства. По обе стороны от водоема располагаются лужайки со взрослым деревом. Двор спрятан от шумных улиц за фасадами зданий. Здесь всегда тихо и спокойно. Жители "Тессинского, 1" могут делегировать решение бытовых вопросов — и быть уверенными в их безупречном исполнении. Сотрудники консьерж-службы примут курьера с адресованной вам посылкой или корреспонденцией, закажут столик в ресторане, заберут вещи в химчистку.
470 556 800 ₽
1 568 000 ₽ за м²